




Easily Customizable BARNDOMINIUM House Plans
Want to bring the superior build and beautiful design of a post-frame building to your new home? Then a barndominium house from PARKER METAL SUPPLY will help you do just that. barn houses have become popular in recent years due to their easy customization, fast build time, and efficiency. With the help of our house builders, we can create a house for you that can be put up in a matter of weeks, not months. We offer six unique house floor plans to get our clients started, but we are open to creating custom plans if none of ours meets your exact needs. If you are interested in building a house on your property, contact our team today for pricing and more information!
6 Unique Barndominium Floor Plans For You To Choose From
Over the past several months, we have created house floor plans that are truly one of a kind and sure to meet the needs of our clients. Here are the six shed house models we currently offer:
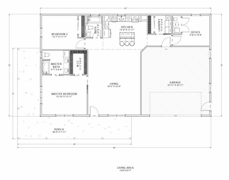
- Dove: is 1,560 sq ft. Features 2 beds, 2 baths, and office space.
- Mockingbird: is 1,952 sq ft. Features 1 bed and 2 baths
- Nightingale: is 2,160 sq feet. Features 2 beds and 2 baths
- Pheasant: is 3,584 sq ft. Features 3 beds and 1 bath
- Skylark: is 3,610 sq ft. Features 3 beds, a bonus room, and 2 baths
- Wren: is 572 sq feet. Features 1 bed and 1 bath.
All our house floor plans come at different price points, so we are sure to find something that meets your space needs and budget. If you are interested in purchasing a shed house from Parker Metal Supply, get in touch with our team today!










Create Your Own Website With Webador